СО ОФИСКОМ ДО СОВРШЕН ДОМ
078 351 910 / 070 305 515
prodazba@ofiskom.mk
Почетна
За нас
Проекти
Завршени
Во градба
Објект – Дуке Карпош
Објект – Дуке
Идни
Контакт
Facebook
Instagram
Почетна
За нас
Проекти
Завршени
Во градба
Објект – Дуке Карпош
Објект – Дуке
Идни
Контакт
↵
назад
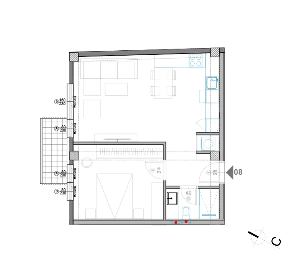
Стан 8
Влезен хол
5.00 m
2
Кујна
9.00 m
2
Дневна со трпезарија
16.00 m
2
Спална соба 1
13.00 m
2
Бања
3.00 m
2
Тераса
3.00 m
2
ВКУПНА НЕТО ПОВРШИНА
49.00 m
2
Previous
Next