СО ОФИСКОМ ДО СОВРШЕН ДОМ
078 351 910 / 070 305 515
prodazba@ofiskom.mk
Почетна
За нас
Проекти
Завршени
Во градба
Објект – Дуке Карпош
Објект – Дуке
Идни
Контакт
Facebook
Instagram
Почетна
За нас
Проекти
Завршени
Во градба
Објект – Дуке Карпош
Објект – Дуке
Идни
Контакт
↵
назад
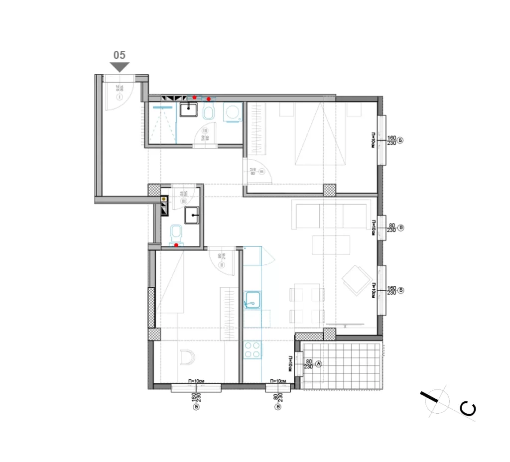
Стан 5
Влезен хол
5.00 m
2
Ходник
6.00 m
2
Кујна
7.00 m
2
Дневна со трпезарија
14.00 m
2
Спална соба 1
12.00 m
2
Спална соба 2
12.00 m
2
Бања
4.00 m
2
Тоалет
2.00 m
2
Тераса
4.00 m
2
ВКУПНА НЕТО ПОВРШИНА
66.00 m
2
Previous
Next