СО ОФИСКОМ ДО СОВРШЕН ДОМ
078 351 910 / 070 305 515
prodazba@ofiskom.mk
Почетна
За нас
Проекти
Завршени
Во градба
Објект – Дуке Карпош
Објект – Дуке
Идни
Контакт
Facebook
Instagram
Почетна
За нас
Проекти
Завршени
Во градба
Објект – Дуке Карпош
Објект – Дуке
Идни
Контакт
↵
назад
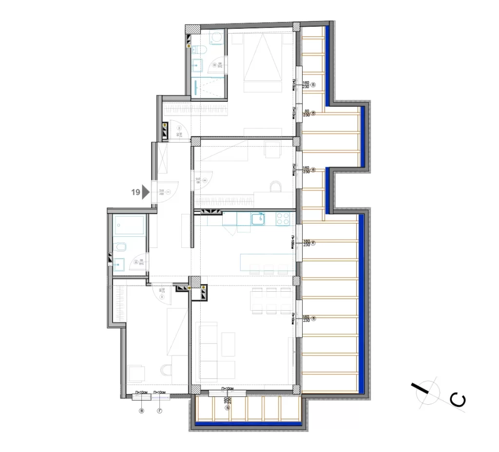
Стан 19
Влезен хол
9.00 m
2
Кујна
12.00 m
2
Дневна со трпезарија
21.00 m
2
Спална соба 1
13.00 m
2
Спална соба 2
17.00 m
2
Спална соба 3
13.00 m
2
Бања 1
3.00 m
2
Бања 2
4.00 m
2
ВКУПНА НЕТО ПОВРШИНА
92.00 m
2
Previous
Next