СО ОФИСКОМ ДО СОВРШЕН ДОМ
078 351 910 / 070 305 515
prodazba@ofiskom.mk
Почетна
За нас
Проекти
Завршени
Во градба
Објект – Дуке Карпош
Објект – Дуке
Идни
Контакт
Facebook
Instagram
Почетна
За нас
Проекти
Завршени
Во градба
Објект – Дуке Карпош
Објект – Дуке
Идни
Контакт
↵
назад
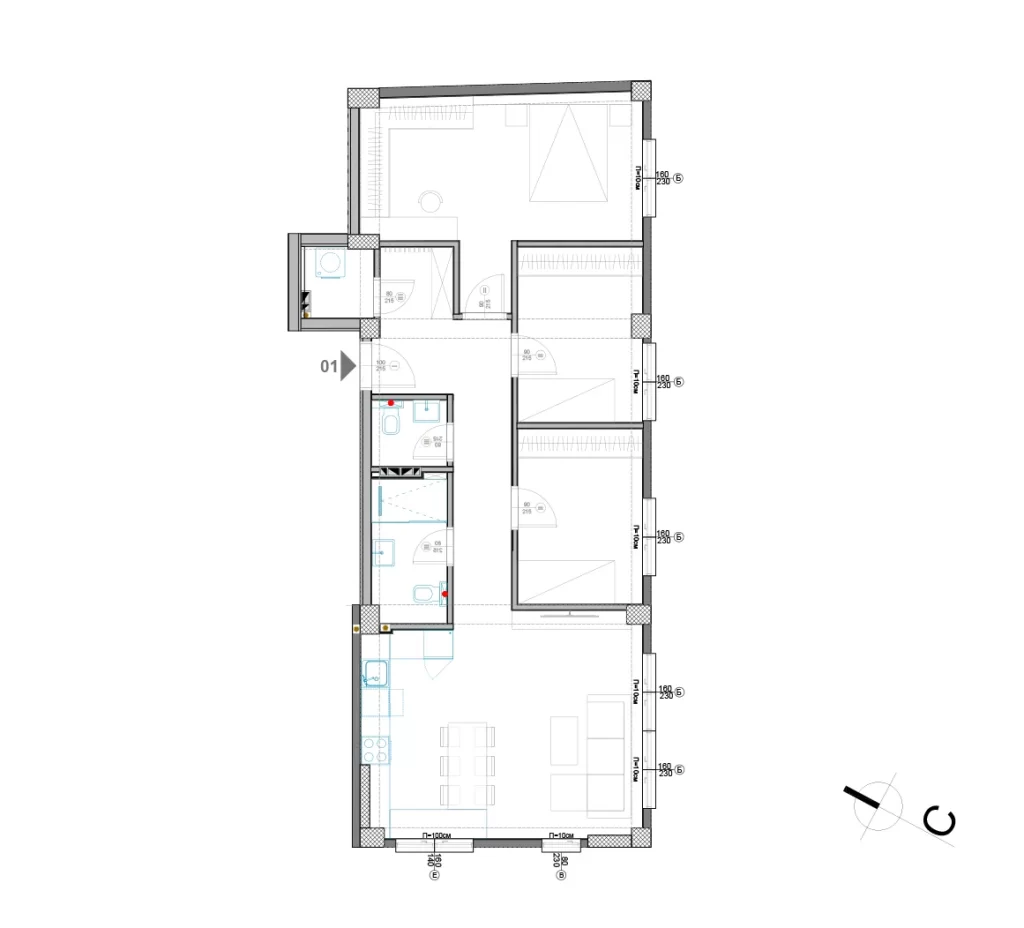
Стан 1
Влезен хол
5.00 m
2
Ходник
7.00 m
2
Кујна
8.00 m
2
Дневна со трпезарија
18.00 m
2
Спална соба 1
9.00 m
2
Спална соба 2
9.00 m
2
Спална соба 3
19.00 m
2
Бања
5.00 m
2
Тоалет
2.00 m
2
Утилити
2.00 m
2
ВКУПНА НЕТО ПОВРШИНА
84.00 m
2